高石市加茂1丁目 新築戸建
- 新着
- 新築
- 価格
3,480万円
- 間取り
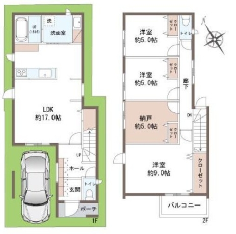
3SLDK
-
建物面積
111.21m²(33.64坪)
-
土地面積
84.64m²(25.6坪)
- 築年月
2026年3月
- 所在地
大阪府高石市加茂一丁目
- 最寄駅
南海本線 高石駅 徒歩12分 , 南海本線 羽衣駅
- 物件番号
123123123
おすすめポイント
■2階建新築一戸建 ■断熱性能5(ZEH基準)
■2026年3月完成予定
- 周辺施設
- 小学校高石市立加茂小学校890m
- スーパー関西スーパー高石駅前店466m
- コンビニファミリーマート高石加茂三丁目店649m
- その他施設高石市立加茂幼稚園725m
- その他施設サンドラッグ高石店594m
- 設備
追焚機能 / 浴室暖房 / 浴室乾燥機 / トイレ2ヶ所 / 温水洗浄便座 / シャワー付洗面化粧台 / 3口以上コンロ / カウンターキッチン / システムキッチン / 食器洗浄乾燥機 / 食器乾燥機 / 収納スペース / クローゼット / ダウンライト / 室内洗濯機置場 / 給湯 / 都市ガス / 全居室フローリング / 電気 / 上水道 / 下水道 / モニタ付インターホン / ディンプルキー / シャッター雨戸 / 火災警報器(報知機) / 洗面所独立
- 駐車場
有
物件概要
- 所在地
大阪府高石市加茂一丁目
- 価格
3,480万円
- 最寄駅
南海本線 高石駅 徒歩12分 , 南海本線 羽衣駅
- その他費用
別途:外構工事費、建築確認費要す。
- 向き
南西
-
建物面積
111.21m²(33.64坪)
-
土地面積
84.64m²(25.6坪)
- 築年月
2026年3月
- 間取り
3SLDK
- 階/階建て
2階建
- 建物構造
木造
- 現況
未完成
- 駐車場
有
- 土地権利
所有権
- 地目
宅地
- 建ぺい率
60%
- 容積率
200%
- 用途地域
第二種住居地域
- 都市計画
市街化区域
- 引渡時期
相談
- 取引態様
他
- 情報公開日
2026年03月06日
- 備考
私道負担:13.68㎡
お気軽にご相談・お問い合わせください
Contact Us
神戸・阪神間・北摂・京阪・大阪市エリアの新築一戸建てを中心とした不動産をご紹介しております。
- TEL.
- 0120-967-624
FAX 06-4790-8856
営業時間 10:00~18:00
定休日 毎週水曜、第1、第3、第5木曜日







